PVC profil – Trocal 88+
Ker se za zamenjavo oken in vrat ne odločate vsak dan, je pravilna izbira dobavitelja še kako pomembna. Naše bogate izkušnje pri prodaji in montaži stavbnega pohištva so zagotovilo za vaše zadovoljstvo. Glavna prednost naše ponudbe je KAKOVOSTNO STAVBNO POHIŠTVO za kar NAJUGODNEJŠO CENO.
V nadaljevanju je prikazanih več vrst kvalitetnih PVC profilov, ki so pri nas dobavljivi. Pri odločanju za pravega pa smo vam seveda vedno na voljo.
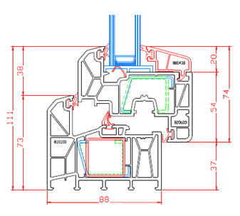
Okna EcoPasiv - Trocal 88+
Predstavljamo vam profil za gradnjo nizko-energetskih hiš TROCAL 88+. Profil je namenjen zahtevnejšim kupcem, ki so usmerjeni v modernejše gradnje z nizko energetsko naložbo, kjer tudi standardi zahtevajo profile nižje toplotne prehodnosti, troslojne zasteklitve, oz. posebne zahteve za doseganje manjše porabe.
Profil TROCAL 88+ odlikujejo:
ravno klasično ali elegance zaobljeno krilo
širina profila je 88mm;
sistem profila je 6-komorni;
Izolativnost okna Uw ≈ 0,8 W/m²K
izolativnost stekla Ug=0,6 W/m2K;
visoka zvočna izolativnost do Rw 48dB;
statična trdnost tudi pri večjih elementih;
3 tesnila
serijsko vgrajeno režno zračenje – za preprečevanje kondenza
serijsko vgrajen prevzdigovalec kril za blokado vrtenja pololive pri odprtem oknu
serijsko ugrajeno varnostno oknovje
V nadaljevanju je prikazanih več vrst kvalitetnih PVC profilov, ki so pri nas dobavljivi. Pri odločanju za pravega pa smo vam seveda vedno na voljo.
Okna EcoPasiv - Trocal 88+
Predstavljamo vam profil za gradnjo nizko-energetskih hiš TROCAL 88+. Profil je namenjen zahtevnejšim kupcem, ki so usmerjeni v modernejše gradnje z nizko energetsko naložbo, kjer tudi standardi zahtevajo profile nižje toplotne prehodnosti, troslojne zasteklitve, oz. posebne zahteve za doseganje manjše porabe.
Profil TROCAL 88+ odlikujejo:
ravno klasično ali elegance zaobljeno krilo
širina profila je 88mm;
sistem profila je 6-komorni;
Izolativnost okna Uw ≈ 0,8 W/m²K
izolativnost stekla Ug=0,6 W/m2K;
visoka zvočna izolativnost do Rw 48dB;
statična trdnost tudi pri večjih elementih;
3 tesnila
serijsko vgrajeno režno zračenje – za preprečevanje kondenza
serijsko vgrajen prevzdigovalec kril za blokado vrtenja pololive pri odprtem oknu
serijsko ugrajeno varnostno oknovje




